
金秋九月,喜訊傳來,隨著最后一方混凝土澆筑完成,興榮產業園三期項目——興榮集團高科技大樓喜封金頂!園區建設取得關鍵性成果,標志著興榮集團在推動區域經濟發展和產業集聚方面邁出了更堅實的一步。不僅展示了集團在高標準、高效率建設中的卓越能力,更預示著未來園區將以更完善的配套設施、更智能化的管理體系,迎接更多企業入駐,共同推動區域經濟的高質量發展。


興榮集團副總裁劉煌輝參與封頂儀式
三期項目
三期項目作為興榮產業園發展的重要里程碑,總建筑面積達6萬平方米,包含兩棟7層框架結構的標準倉儲與加工廠房雙用途建筑,每層約4000平方米,層高設計靈活,能夠滿足各類企業的多樣需求。三期項目不僅將園區總面積擴展至27萬平方米,也進一步優化了產業布局,有效提升產業上下游物流效率,降低物流成本,利于產業鏈整合與行業互動交流,為形成更加集聚效應和優質的產業環境打下堅實基礎。
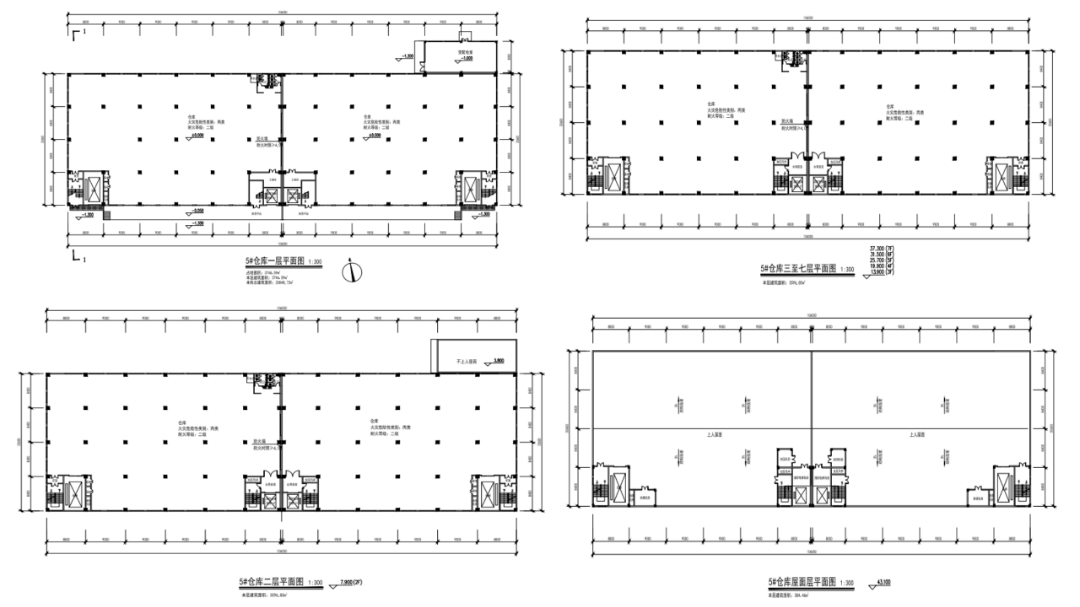
?高標準廠房:每棟7層,每層約4000平方米,廠房荷載按照1.5T/m2設計。
?層高:1層7.9米,2-3層6米,4-7層5.7米。
?先進配置:每棟配置4部9噸貨梯,一樓整層自帶1.3米高出貨平臺。

三期廠房平面圖

三期廠房配置情況
園區概況
興榮產業園是經國家發改委立項的廈門市重點物流園項目,是廈門打造國際性物流樞紐城市的重要支撐項目和抓手。由興榮集團投資近10億建設,建筑面積達27萬平方米。產業園具有建設標準化、智能化、數字化與供應鏈和產業鏈高度融合的特點,并以綠色、低碳環保為理念,具備有效解決城市物流短板的能力。

興榮產業園項目規模體量位居福建省前列。主要業務包含產業園廠房租賃、汽車銷售與保養、物流與倉儲、物業管理、加工制造等,目前園區已入駐有:汽車4S店、倉儲、貿易、加工等企業。集團頂層規劃園區,致力于將物流園打造成為集新能源汽車產業園、物流供應鏈、工業中轉鏈、城市綜合一體化的國際物流中心。
興榮產業園位于同安西柯工業核心區,位居新324國道蘇頌大道與同集北路交界處。距離BRT快速公交站點400米,距離同安高速入口800米,20分鐘內可抵達廈門北站、港口、機場,南靠沈海、廈蓉高速,福廈、廈深鐵路。毗鄰同安工業集中區,輻射食品工業園、同翔高新區。整體區位交通便利,路網四通八達,可為入駐的快遞、電商、物流、倉儲等企業貨物快速周轉提供強有力的支持。周邊生活配套完善,位置得天獨厚,凸顯區位優勢。

配套設施
園區內所有建筑均為丙項二類消防資質,均通過消防安全檢查,消控室、消防栓、滅火器、防火門等配套消防設施一應俱全。物流園內水、電、道路、通訊、主干線(網)等基礎設施齊備,配套辦公室、員工宿舍、食堂、商超、充電樁、汽修汽配等,可享受信息、配貨、停車、維修、倉儲、住宿等“一站式”服務。同時每棟廠房頂樓配置分布式光伏,為廠區提供更加便捷、穩定的電力供應。

在庫房區、辦公樓過道、園區道路、四周圍欄及停車場等關鍵位置均安裝了全方位的攝像監控系統,實現實時監控和遠程監視,并實行24小時保安值班巡邏,大幅提升突發事件的響應速度,有效保障園區財產和人員安全,確保整個物流園區的生產秩序安全穩定。

三期項目的順利封頂,意味著興榮正邁向一個嶄新的高度。未來,我們將繼續以國際化視野、高標準要求,攜手各界合作伙伴,共同打造一個充滿活力、可持續發展的標桿物流園,助力區域經濟騰飛。

興榮產業園廠房條件優越,可以匹配物流倉儲、重型無污染工業、輕工業;一樓部分可做展廳、汽車4S店。在政策支持下,廠房也可用于醫院、教育等民生行業。可入駐的企業類型包括輕加工、貿易、倉儲和汽車4S店等。
企業入駐請聯系招商部:
莊先生13906041532
陳先生13850057575
陳女士13599904655
胡先生18250701181
郵箱:xr@amoyxingrong.com
地址:福建省廈門市同安區同集北路300號